Australia

# Sold For Sale $1,600,000

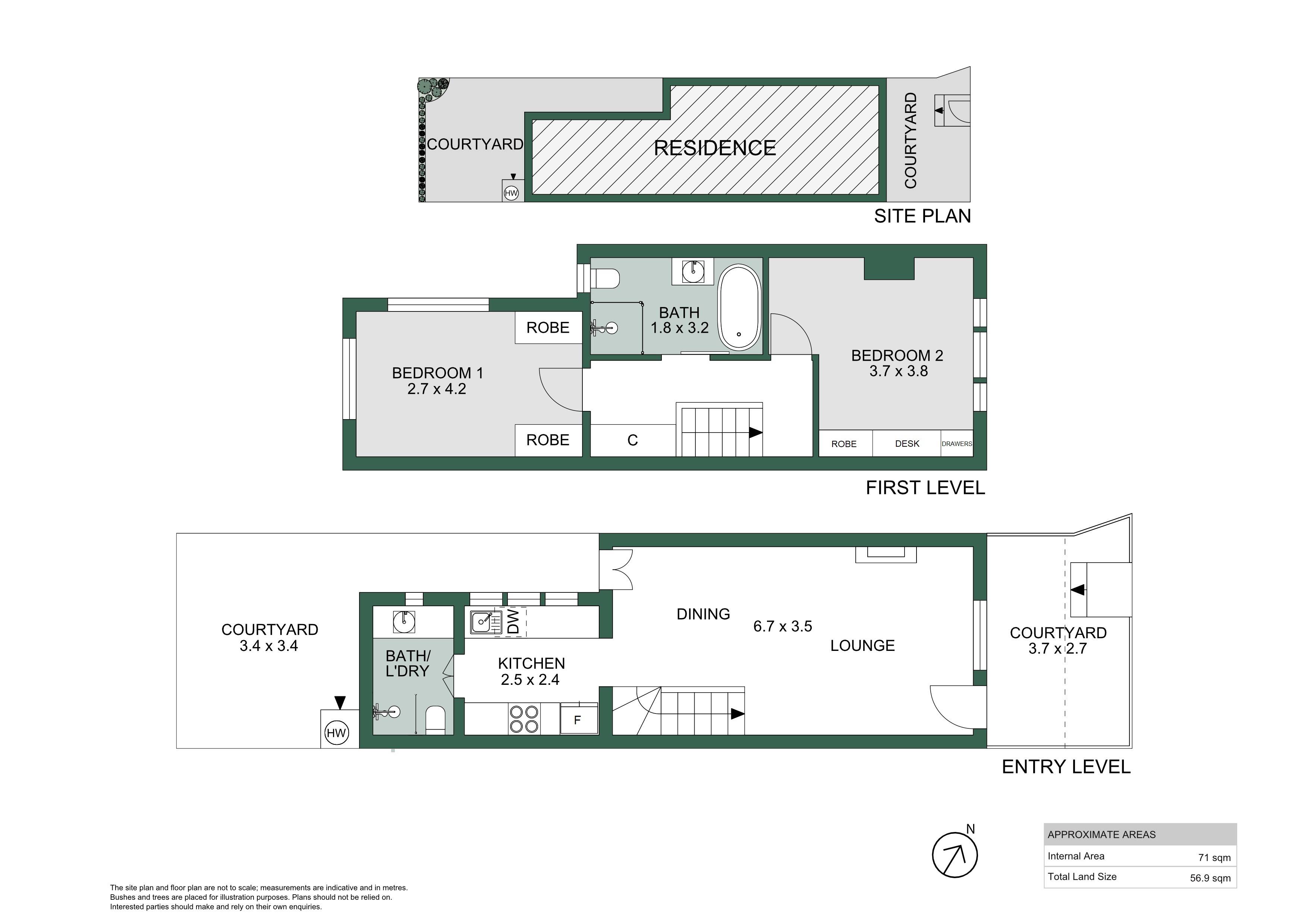
4 Rumsay Street, Rozelle, NSW 2039

# Location

Description

Classic terrace retreat with rapid access into the city Cleverly redesigned to provide two bedrooms and beautifully renovated throughout for modern living, this easycare Rozelle terrace enjoys a prized position in a peaceful street near the revitalising White Bay precinct. Light filled interiors display a blend of character and fresh style featuring views through the trees towards the city from the upper level, a freshly invigorated entry with attractive sandstone-fronted deck area and a courtyard space at the rear. A quality local entry point, perfect for a young couple, downsizers, city professional or investor, the home is within 450m of city buses on Mullens Street, a 15-minute walk to shops, cafes and restaurants along Darling Street and less than 6.0km from the CBD.

- Offering two updated bathroom on each level with upstairs including bath

- Living/dining with polished floorboards leads to modern kitchen

- Kitchen has stone benchtops, s/steel appliances incl. dishwasher - French doors from the living area out to a sunny courtyard - Two bedrooms with built-ins, one has leafy outlooks to the city - Shutters and r/c air conditioning to living and both bedrooms - Near bakery/cafe, White Bay Brewery and Bald Rock Hotel - Short walk to forthcoming 'Bays' Metro station, easy street parking

View More #

Floor Plans

Location

  • Contact the agency

    To request an inspection

  • # Call # Email

Lynsey Kemp

Agent Name

Rebecca Williams

Agent Name

# Report Listing

Looking for a property?

  • Top listings
  • Investment
  • Development
  • Personal home
  • Price reports
  • Suburb reports

Do you own a property?

  • Place a free listing
  • Services for private advertisers
  • Guide to selling your home
  • Insurance
  • Improve the photos of your listing
  • Value your property for free

Are you a real estate proffesional?

  • Publish your agencies properties
  • Already a client? Log into your account
  • Advertising on Australian Real Estate
  • Australian Real Estate data technology for property insights
  • Real Estate courses